LOCATION
Orange, California
DATE
2016
TYPE
Offices
PROJECT DESCRIPTION
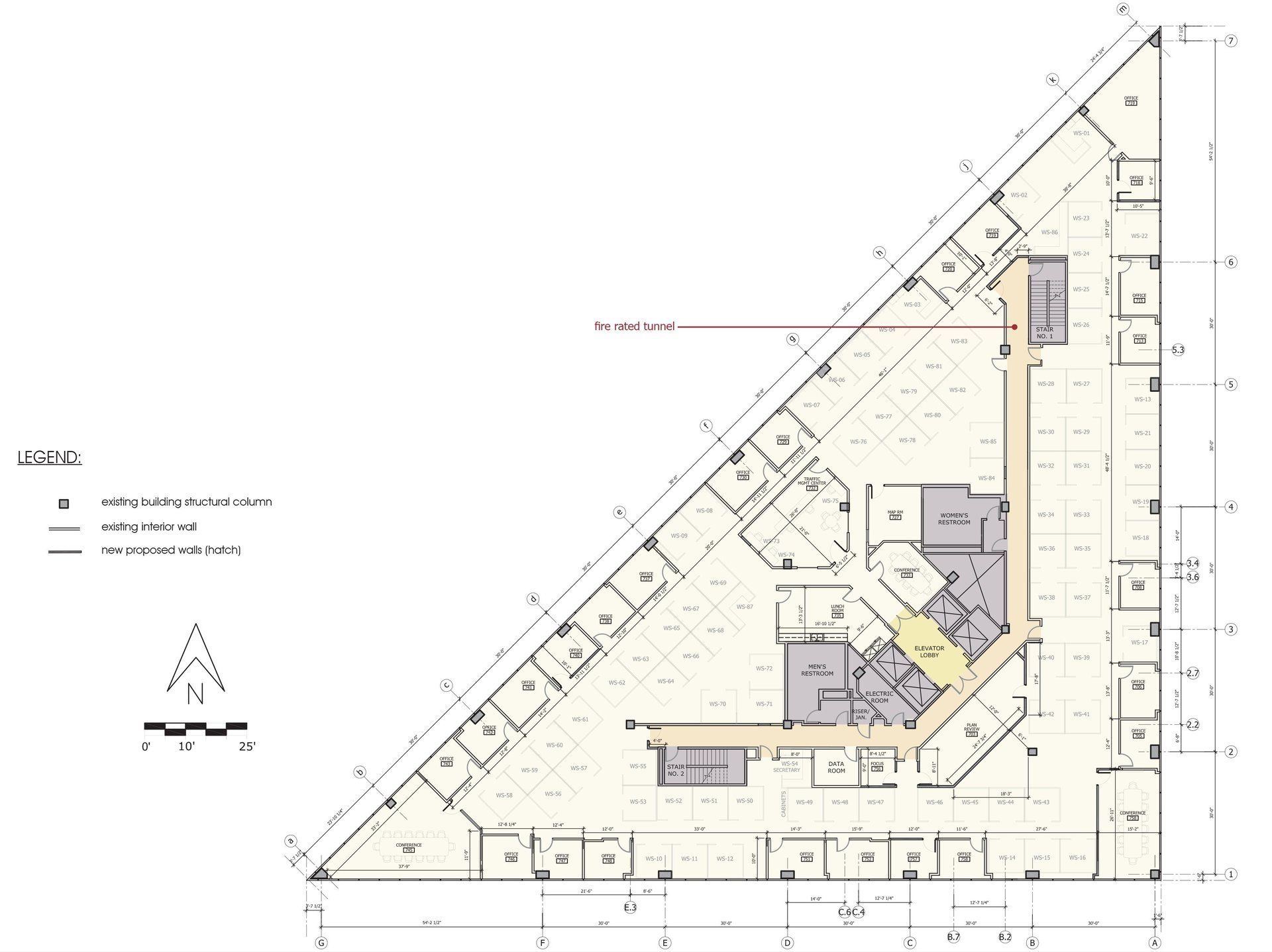
The project scope required consolidating 8 distinct County Departments with over 100 employees spread across various floors of a mid-rise building into a single 14,000sf floor that was continuously occupied during the process. We provided full space planning as well as architectural services and developed a phasing plan for the move. During the design process, GPa found many opportunities to optimize shared spaces among the various departments resulting in less space requirements than the existing condition. By understanding specific functions and layouts required specifically for each department, it helped to standardize workstations and offer an optimal work layout for everyone while utilizing space much more efficiently and effectively.


 
  
  
  
  
  
  
  
 
